青森プロポーザル

既存の集合住宅が建つ敷地を分割し、新たな集合住宅の建築提案を行った。
多様なライフスタイルに対応するため、統一されたデザインと間取りの中で、住まい手が自由に変化や色付け、味付けを加えられるように計画した。
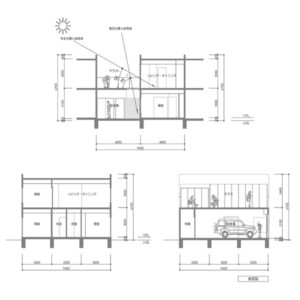
具体的には、9.6m×9.6mの一定モジュール内に必要な要素を盛り込み、各戸の形を統一した長屋形式とした。
これにより、通風や日照、隣戸とのプライバシーなどの居住環境は均等に保たれている。

計画の特徴は、正方形平面の半分を駐車場に、2階の半分を多目的テラスに割り当て、反転プランタイプを廃した点にある。
また、多雪地域であることを考慮し、除雪作業がしやすいよう出入口の方向を選択可能に配慮した。
居住者それぞれのライフスタイルに合わせて、空間の使い方を自在に変えられることを期待した計画である。

所在地: 青森県六カ所村
用途地域: 無指定地域
敷地面積: 1,500.00㎡
建築面積: 737.28㎡
延床面積: 416.64㎡
構造規模: 鉄筋コンクリート造 地上2階

Drawing Gallery

Pers Gallery

© 2025 建築日和