用賀のスタジオ

閑静な住宅地に位置するこの敷地は、二方向で道路に面している。
しかし、前面道路の幅員は4メートルに満たず、さらに周辺の道路状況も非常に複雑であるため、塀でガッチリ囲うような構えではなく、敷地の一部を近隣に対して圧迫感なく“開く”ことを意識して計画を行った。

メインエントランス前には開けたスペースがあり、地面に収納可能なバリカー(可動柵)を下ろせば、ちょっとした広場のような存在となる。
この場は、多くの人が集えるスペースであると同時に、本来の目的である駐車場としても活用できる。

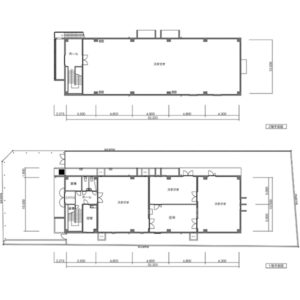
建物内には、大きさの異なる4タイプのスタジオを用意。
イベントや撮影など、さまざまな用途に応じて臨機応変に使えるように設計している。
たとえば、外部との連絡が頻繁に発生するスタジオ、収容人数の多いスタジオ、機材搬入のしやすさを重視したスタジオ──と、それぞれに役割を持たせた。

所在地: 東京都世田谷区
用途地域: 第一種低層住居専用地域
敷地面積: 963.28㎡
建築面積: 354.79㎡
延床面積: 690.50㎡
構造規模: 鉄筋コンクリート造 地上2階

Drawing Gallery

Photo & Pers Gallery

© 2026 建築日和